Community Corner
Glastonbury's Welles-Turner Library: Up-Close Look At Renovations
Check out the latest look at renovations to the Welles-Turner Library.

GLASTONBURY, CT — Glastonbury officals on Thursday offered an updated look at the project to renovate the Welles-Turner Memorial Library.
Updated renderings were part of the package provided by the architect, TSKP Studio.
The Welles-Turner addition measures 2,700 square feet for a total of 36,500 square feet.
Find out what's happening in Glastonburyfor free with the latest updates from Patch.
Here is a project description inbcluded in the packet:
"The way we research, learn and communicate is evolving. The modern public library is now a place where people of all ages meet to discover and exchange ideas. It is comprised of flexible spaces that allow for small group individual study, large group instruction, and innovative thinking. It supports future-ready programming which reflects skills that provide patron readiness for a future that requires flexibility, adaptability, and critical thinking. It is an incubator of new ideas."
Find out what's happening in Glastonburyfor free with the latest updates from Patch.
The project "refreshes the public spaces of Welles-Turner Memorial Library to best serve the current and future needs of the growing Town of Glastonbury."
It includes:
- Additional spaces and seats for co-working, and small group meetings.
- A central multi-use Commons space with movable furniture that may be re-arranged to seat an audience of 100+.
- Additional adult stack space and quiet reading areas.
- An enlarged Children’s area with age-appropriate stack heights, daylight, and access to a newly paved children’s terrace.
- The Young adult area is furnished for small group, individual study, and technological collaboration with direct access to the Maker Space.
- A "maker space," housed in the first floor of the addition. A maker space is a community resource for sharing equipment and technological expertise.
According to the project:
"The design for the Welles-Turner Memorial Library is fresh and modern, while retaining historical and traditional elements that carefully knit the building into the existing contextual fabric of the town. With deference to the original building, which was constructed on the site of the former home of the library’s original benefactor, Harriet Welles Turner Burnham, the addition exterior is clad with materials reminiscent of the Town’s rural past, such as stone walls and board siding. Modern windows and skylights, connect the interior to the surroundings.
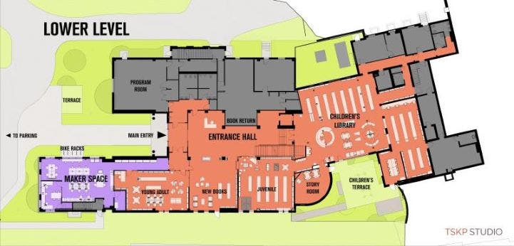
See the floor plans below:

(Town Of Glastonbury/TSKP Studio)

(Town Of Glastonbury/TSKP Studio)
For more information on the renovation/expansion project, visit www.glastonbury-ct.gov/wtmlreno.
Get more local news delivered straight to your inbox. Sign up for free Patch newsletters and alerts.