Politics & Government
Brewster Approves Urban Renewal Plan
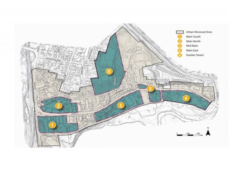
The land use strategy consists of creating a mix of residential, neighborhood retail, parking, community facilities, and open space.

Brewster's village trustees passed the Urban Renewal Plan May 18 on a vote of 4 to 0 with one abstention.
Mayor Jim Schoenig posted the news on the Village of Brewster (VOB) Facebook page: “Happy to report the Village of Brewster took another step forward towards our revitalization tonight. With a vote of 4-0-1 the Urban Renewal Plan passed.”
Deputy Mayor Christine Piccini, Trustee Mary Bryde, and Trustee Tom Boissonnault joined with Schoenig casting votes in support of the plan. Trustee Erin Meagher abstained.
Find out what's happening in Southeast-Brewsterfor free with the latest updates from Patch.
The Urban Renewal Plan is the culmination of broad-based efforts started in 2013 with public engagement sessions and professional land planning services which identified the fundamental building blocks to create a revitalized downtown that invites neighbors from within the Village borders and the surrounding region to share the benefits of a revitalized community.
The revised Comprehensive Plan, Zoning Code, and associated code changes have all set the stage for transit-oriented development, the walkable village, outdoor recreation opportunities, more housing and retail opportunities including sidewalk cafés, a central plaza and links to cultural centers like the Museum, Library, and Walter Brewster House.
Find out what's happening in Southeast-Brewsterfor free with the latest updates from Patch.
The goals are a higher quality of life, increased population, and tourism to benefit the region and make Brewster a destination as it once was when it was known as the “Hub of the Harlem Valley.”
The vote came on the heels of newly released plans to rebuild and realign the Carmel Avenue Bridge and the recent grand reopening of Wells Park.
Agreements still need to be negotiated and project plans need to be brought forward for the usual reviews before real change can begin to occur, village officials said.
Get more local news delivered straight to your inbox. Sign up for free Patch newsletters and alerts.